





















4 Bedrooms 2 Bathrooms 3 Reception
Detached - Freehold
23 Photos
Ilkeston
Elders Estates are delighted to offer to the market this structurally detached residence, which offers a perfect blend of period and impressive contemporary features as well as benefiting from being situated on the door step of Ilkeston�s Town Centre, having a good range of local amenities including shops, restaurants, primary/secondary schools, recreational facilities and regular bus services.
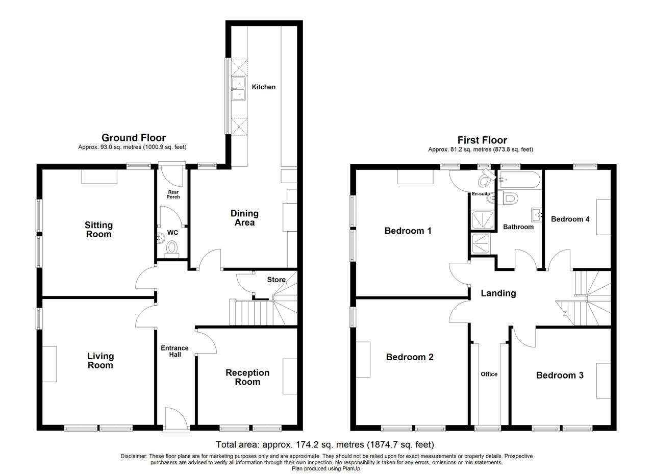
The ground floor offers very versatile accommodation with each room offering space in abundance, and boasting traditional features throughout, comprising a grand hallway, modern, extended open plan kitchen/diner with country style kitchen with Belfast sink and sky lights, lounge having parquet flooring and log burner, sitting room, reception room and downstairs W.C.
Balustrade staircase leads from the entrance hall to the landing which provides access to all first floor rooms including four generous size bedrooms, including master bedroom with ensuite, stylish family bathroom with four piece suite and office.
Externally, the property enjoys a delightful, generous size and private plot having a gated driveway, providing ample off road parking. Enclosed rear garden being mainly laid to lawn and paved pathway leading to the outbuildings having ground floor and first floor levels, including workshop and stores.
A full internal viewing of this superb family home is essential to fully appreciate the standard and style to which this residence has been appointed!
ENTRANCE HALL 5.78m (19') max x 5.03m (16'6") max
LOUNGE 4.45m (14'7") x 3.95m (13')
SITING ROOM 4.47m (14'8") x 3.95m (13')
RECEPTION ROOM 3.51m (11'6") x 3.41m (11'2")
KITCHEN 4.97m (16'4") x 2.33m (7'8")
DINING AREA 3.77m (12'4") x 3.47m (11'5")
DOWNSTAIRS W.C 1.08m (3'7") x 1.08m (3'7")
REAR PORCH 1.96m (6'5") x 1.08m (3'7")
LANDING 4.95m (16'3") max into stairs x 2.81m (9'2") max
MASTER BEDROOM 4.47m (14'8") x 3.95m (13')
ENSUITE 2.13m (7') x 0.85m (2'9")
BEDROOM TWO 4.45m (14'7") x 3.95m (13')
BEDROOM THREE 3.51m (11'6") x 3.41m (11'2")
BEDROOM FOUR 3.47m (11'5") x 2.33m (7'8")
OFFICE 2.88m (9'5") x 1.34m (4'5")
BATHROOM 3.47m (11'5") x 1.57m (5'2") excl recess to shower
OUTBUILDINGS
STORE 2.33m (7'8") x 1.59m (5'3")
STORAGE 4.22m (13'10") x 2.33m (7'8")
WORKSHOP 4.85m (15'11") x 2.33m (7'8")
OUTBUILDINGS (UPPER FLOOR) 2.33m (7�8�) x 10.66m (34�11�)
DISCLAIMER
These property particulars do not constitute or form part of the offer or contract. All measurements are approximate. Any appliances or services to be included in the sale have not been tested by ourselves and accordingly we recommend that all interested parties satisfy themselves as to the condition and working order prior to purchasing. None of the statements contained in these particulars or floor plans are to be relied on as statements or representations of fact and any intending purchaser must satisfy themselves by inspection or perusal of the title to the property or otherwise as to the correctness of each of the statements contained in these particulars. The vendor does not make, warrant or give, neither do Elders Estates and any persons in their employment have any authority to make or give, any representation or warranty whatsoever in relation to this property. All photographs/images are to give a visual guide only and items and appliances shown within the photographs/images are not necessarily included in the sale.
MONEY LAUNDERING REGULATIONS
We are legally required to conduct (AML) Anti Money Laundering Checks on all purchasers and sellers. Intending purchasers will be asked to produce identification documentation to comply with money laundering, we ask for your cooperation in order that there will be no delay in agreeing a sale.
Title Plan
Elders Estates LTD have not sought to verify the legal title of the property and the buyers must obtain verification from their solicitor.
Flood Risk
Please use the official gov.uk website (link provided on our own website) to disclose any potential flood risk, by using the postcode provided below. These external sources provide the most accurate and up to date information.
Broadband Speed
Please use the �Property Checker� Website (link provided on our own website) to check the broadband speed, by using the postcode provided below. These external sources provide the most accurate and up to date information.
The postcode for this property is DE7 5JB
Reference: H001639
Disclaimer
These particulars are intended to give a fair description of the property but their accuracy cannot be guaranteed, and they do not constitute an offer of contract. Intending purchasers must rely on their own inspection of the property. None of the above appliances/services have been tested by ourselves. We recommend purchasers arrange for a qualified person to check all appliances/services before legal commitment.
Contact Elders Estates for more details